Главная
Металлоконструкции
Каталог
Металлоконструкции
Игровое оборудование
Спортивные комплексы и оборудование
Благоустройство города
Контейнерные площадки
Оборудование для сбора мусора
Теневые навесы
Стойки для сушки белья
Контакты
Клиенту
Сертификаты
Наши партнеры
Новости
8 (0214) 757555
+37544 7207545
8 (0214) 757555
+37544 7207545
Главная
Каталог
Спортивные комплексы и оборудование
Спортивное оборудование
Спортивный уличный тренажер СО-003
Спортивный уличный тренажер СО-003
Артикул СО-003
Характеристики
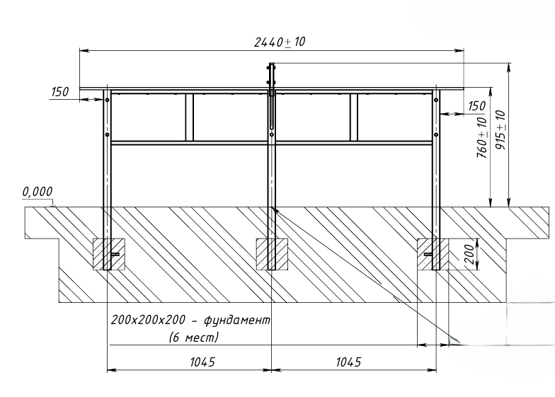
Габаритные размеры :
1320x2440мм
Высота:
915мм
Дополнительная информация:
Заказать
Детальная информация
С целью улучшения качества обслуживания используются файлы cookie. Оставаясь на нашем сайте, Вы соглашаетесь с использованием данной технологиий.
Соглашаюсь
Закрыть