Главная
Металлоконструкции
Каталог
Металлоконструкции
Игровое оборудование
Спортивные комплексы и оборудование
Благоустройство города
Контейнерные площадки
Оборудование для сбора мусора
Теневые навесы
Стойки для сушки белья
Контакты
Клиенту
Сертификаты
Наши партнеры
Новости
8 (0214) 757555
+37544 7207545
8 (0214) 757555
+37544 7207545
Главная
Каталог
Спортивные комплексы и оборудование
Спортивное оборудование
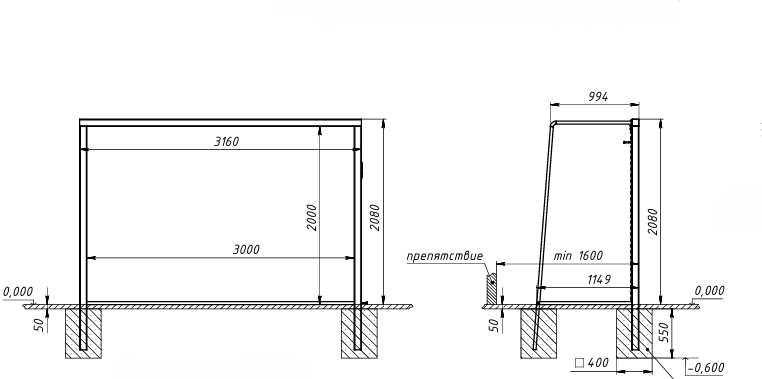
Ворота для мини-футбола малые СО-001
Ворота для мини-футбола малые СО-001
Артикул СО-001
Характеристики
Габаритные размеры :
994x3160мм
Высота:
2080мм
Дополнительная информация:
Заказать
Детальная информация
С целью улучшения качества обслуживания используются файлы cookie. Оставаясь на нашем сайте, Вы соглашаетесь с использованием данной технологиий.
Соглашаюсь
Закрыть